

![]() |
![]() |
![]() |
序號 | 型號規格LFVB-N | 實際濾面積(m2) | 濾袋數量(個) | 濾袋長度(m) | 過濾風速(m/min) | 處理風量(m3/h) | 除塵效率(%) | 設備阻力(kpa) | 重量(噸) |
1 | 1/50 | 52 | 30 | 2.2 | 1-2 | 3000-6000 | >99.5 | 0.8-1.6 | 3.06 |
2 | 2/70 | 73 | 66 | 1.4 | 4200-8400 | 3.66 | |||
3 | 2/90 | 93 | 66 | 1.8 | 5400-10800 | 4.32 | |||
4 | 2/120 | 124 | 66 | 2.4 | 7200-14400 | 5.13 | |||
5 | 2/140 | 145 | 66 | 2.8 | 8400-16800 | 5.88 | |||
6 | 3/160 | 161 | 128 | 1.6 | 9600-19200 | 6.7 | |||
7 | 3/180 | 181 | 128 | 1.8 | 10800-21600 | 6.85 | |||
8 | 3/220 | 221 | 128 | 2.2 | 13200-26400 | 7.26 | |||
9 | 3/260 | 161 | 128 | 2.6 | 15600-31200 | 8.19 | |||
10 | 4/300 | 297 | 210 | 1.8 | 18000-39000 | 9.27 | |||
11 | 4/380 | 396 | 210 | 2.4 | 22800-45600 | 11.06 | |||
12 | 4/460 | 462 | 210 | 2.8 | 27600-55200 | 12.9 |
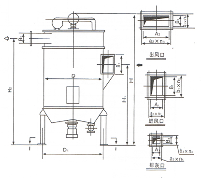
序號 | 1 | 2 | 3 | 4 | 5 | 6 | |
型號 | LFVB-N-1/50 | LFVB-N2/70 | LFVB-N-2/90 | LFVB-N-2/120 | LFVB-N-2/140 | lFVB-N-3/160 | |
D | 1950 | 2520 | 2520 | 2520 | 2520 | 3360 | |
D1 | 2070 | 2635 | 2635 | 2635 | 2635 | 3475 | |
H | 5180 | 4425 | 4825 | 5425 | 5825 | 5365(4125) | |
H1 | 3265 | 2485 | 2835 | 3410 | 3835 | 2650 | |
H2 | 3900 | 3145 | 3545 | 4145 | 4545 | 3735 | |
L1 | 1078 | 1388 | 1388 | 1413 | 1463 | 1884 | |
L2 | 1400 | 1700 | 1700 | 1700 | 1700 | 2200 | |
L3 | 1000 | ||||||
進風口A1×B1 | 200×350 | 250×400 | 250×500 | 300×550 | 400×500 | 400×550 | |
出風口A2×B2 | 600×300 | 600×300 | 600×300 | 700×350 | 700×350 | 1000×500 | |
排灰口A3×B3 | 150×150 | 200×200 | 200×200 | 200×200 | 200×200 | 240×240 | |
進風口法蘭螺孔 | a1×n1 | 131×2 | 104×3 | 104×3 | 123.33×3 | 117.5×4 | 117.5×4 |
b1×n2 | 137.33×3 | 115.5×4 | 124.4×5 | 124×5 | 114×5 | 124×5 | |
出風口法蘭螺孔 | a2×n3 | 131.2×5 | 131.2×5 | 131.2×5 | 127×6 | 127×6 | 118×9 |
b2×n4 | 118.67×3 | 118.67×3 | 118.67×3 | 137.33×3 | 137.33×3 | 112.4×5 | |
排灰口法蘭螺孔 | a3×n5 | 100×2 | 125×2 | 125×2 | 125×2 | 125×2 | 145×2 |
b3×n6 | 110×2 | 125×2 | 125×2 | 125×2 | 125×2 | 145×2 | |
序號 | 7 | 8 | 9 | 10 | 11 | 12 | |
型號 | LFVB-N-3/180 | LFVB-N-3/220 | LFVB-N-3/260 | LFVB-N-4/300 | LFVB-N-4/380 | LFVB-N-4/460 | |
D | 3360 | 3360 | 3360 | 4120 | 4120 | 4120 | |
D1 | 3475 | 3475 | 3475 | 4240 | 4240 | 4240 | |
H | 5565(4325) | 5965(4725) | 6335(5125) | 5610(4380) | 6210(4980) | 6610(5380) | |
H1 | 2825 | 3225 | 3575 | 2765 | 3315 | 3715 | |
H2 | 3935 | 4335 | 4735 | 3980 | 4580 | 1980 | |
L1 | 1884 | 1934 | 1934 | 2315 | 2365 | 2415 | |
L2 | 2200 | 2200 | 2200 | 2600 | 2600 | 2600 | |
L3 | 1000 | ||||||
進風口A1×B1 | 400×600 | 500×600 | 500×700 | 500×800 | 600×900 | 700×900 | |
出風口A2×B2 | 1000×500 | 1000×500 | 1000×500 | 1200×600 | 1200×600 | 1200×600 | |
排灰口A3×B3 | 240×240 | 240×240 | 240×240 | 280×280 | 280×280 | 280×280 | |
進風口法蘭螺孔 | a1×n1 | 117.5×4 | 114.5×5 | 114.4×5 | 114.4×5 | 112×6 | 128.67×6 |
b1×n2 | 111.67×6 | 112×6 | 128.67×6 | 124.57×7 | 121.5×8 | 121.5×8 | |
出風口法蘭螺孔 | a2×n3 | 118×9 | 118×9 | 118×9 | 115.64×11 | 115.64×11 | 115.64×11 |
b2×n4 | 112.4×5 | 112.4×5 | 112.4×5 | 112×6 | 112×6 | 112×6 | |
排灰口法蘭螺孔 | a3×n5 | 145×2 | 145×2 | 145×2 | 165×2 | 165×2 | 165×2 |
b3×n6 | 145×2 | 145×2 | 145×2 | 165×2 | 165×2 | 165×2 | |
序號 | 型號規格LFVB-Z | 實際過濾面積(m2) | 濾袋數量(個) | 濾袋長度(M) | 過濾風速(m/min) | 處理風量(m3/h) | 除塵效率(%) | 設備阻力(kpa) | 重量(噸) |
1 | 5/1000 | 1037 | 300 | 4.4 | 0.5-1 | 30000-60000 | >99.5 | 0.8-1.6 | 32.67 |
2 | 5/1200 | 1225 | 300 | 5.2 | 36000-72000 | 37.2 | |||
3 | 5/1400 | 1414 | 300 | 6.0 | 42000-84000 | 44.17 | |||
4 | 5/1600 | 1626 | 414 | 5.0 | 48000-96000 | 48.16 | |||
5 | 5/1800 | 1821 | 414 | 5.6 | 54000-10800 | 51 | |||
6 | 5/2000 | 2016 | 414 | 6.2 | 60000-120000 | 57.5 |
序號 | 型號規格LFVB-W | 實際過濾面積(m2) | 濾袋數量(個) | 濾袋長度(M) | 過濾風速(m/min) | 處理風量(m3/h) | 除塵效率(%) | 設備阻力(kpa) | 重量(噸) |
1 | 1/50 | 52 | 30 | 2.2 | 1-2 | 3000-6000 | >99.5 | 0.8-1.6 | 3.5 |
2 | 1/70 | 75 | 30 | 3.2 | 4200-8400 | 4.27 | |||
3 | 1/90 | 94 | 30 | 4.0 | 5400-10800 | 4.93 | |||
4 | 1/120 | 124 | 66 | 2.4 | 7200-16800 | 6.45 | |||
5 | 1/140 | 145 | 66 | 2.8 | 8400-16800 | 7.05 | |||
6 | 1/160 | 166 | 66 | 3.2 | 9600-19200 | 7.66 | |||
7 | 1/180 | 187 | 66 | 3.6 | 10800-21600 | 7.85 | |||
8 | 1/220 | 221 | 128 | 2.2 | 13200-26400 | 8.57 | |||
9 | 1/260 | 261 | 128 | 2.6 | 15600-31200 | 9.38 | |||
10 | 1/300 | 302 | 128 | 3.0 | 18000-36000 | 10.62 | |||
11 | 1/380 | 382 | 128 | 3.8 | 22800-45600 | 13.29 | |||
12 | 1/460 | 462 | 128 | 4.6 | 27600-55200 | 15.1 | |||
13 | 1/530 | 528 | 210 | 3.2 | 31800-63600 | 18.77 | |||
14 | 1/660 | 660 | 210 | 4.0 | 39600-79200 | 20.82 | |||
15 | 1/800 | 729 | 210 | 4.8 | 48000-96000 | 24.38 |

型號 | FVB-Z-5/1000 | FVB-Z-5/1200 | FVB-Z-5/1400 | FVB-Z-6/1600 | FVB-Z-6/1800 | FVB-Z-6/2000 | |
D | 5400 | 5400 | 5400 | 6300 | 6300 | 6300 | |
D1 | 5500 | 5500 | 5500 | 6400 | 6400 | 6400 | |
H | 12970 | 13770 | 14570 | 14325 | 14925 | 15525 | |
H1 | 9430 | 10130 | 10730 | 10430 | 11030 | 11630 | |
H2 | 11050 | 11850 | 12650 | 12355 | 12955 | 13555 | |
L1 | 3206 | 3206 | 3206 | 3708 | 3808 | 3858 | |
L2 | 3500 | 3500 | 3500 | 4000 | 4000 | 4000 | |
L3 | 1000 | ||||||
進風口A1×B2 | 1000×1400 | 1000×1600 | 1000×2000 | 1100×2000 | 1300×2000 | 1400×2000 | |
出風口A2×B1 | 2200×1100 | 2200×1100 | 2200×1100 | 2800×1100 | 2800×1100 | 2800×1100 | |
排灰口D | 350 | 350 | 350 | 400 | 400 | 400 | |
進風口法蘭螺孔 | a1×n1 | 156×7 | 156×7 | 156×7 | 156×8 | 155.55×9 | 150×10 |
b1×n2 | 149.2×10 | 153.85×11 | 149.42×14 | 150×45 | 150×14 | 150×14 | |
出風口法蘭螺孔 | a2×n3 | 152.8×15 | 152.8×15 | 152.8×15 | 152.63×19 | 152.63×19 | 152.62×19 |
d2×n4 | 149×8 | 149×8 | 149×8 | 150×8 | 150×8 | 150×8 | |
排灰口法蘭螺孔 | A | 450 | 450 | 450 | 500 | 500 | 500 |
B | 410 | 410 | 410 | 460 | 460 | 460 | |
ф×n | ф17×8 | ||||||
型號 | FVB-W-1/50 | FVB-W-1/70 | FVB-W-1-90 | FVB-W-2/120 | FVB-W-2/140 | |
D | 1950 | 1950 | 1950 | 2520 | 2520 | |
D1 | 2070 | 2070 | 2070 | 2635 | 2635 | |
H | 6880 | 7880 | 6880 | 8445 | 8445 | |
H1 | 4915 | 5890 | 6640 | 5455 | 5880 | |
H2 | 5550 | 6550 | 7350 | 6645 | 7045 | |
L1 | 1078 | 1103 | 1103 | 1414 | 1464 | |
L2 | 1500 | 1500 | 1500 | 1800 | 1800 | |
L3 | 1000 | |||||
進風口A1×B2 | 200×350 | 250×400 | 250×500 | 300×550 | 400×500 | |
出風口A2×B1 | 600×300 | 600×300 | 600×300 | 800×600 | 800×600 | |
排灰口D | 150 | 150 | 150 | 200 | 200 | |
進風口法蘭螺孔 | a1×n1 | 131×2 | 104×3 | 104×3 | 123.33×3 | 117.5×4 |
b1×n2 | 137.3×3 | 115.5×4 | 112.4×5 | 124×5 | 114×5 | |
出風口法蘭螺孔 | a2×n3 | 132.4×5 | 132.4×5 | 132.4×5 | 124.28×7 | 124.28×7 |
d2×n4 | 120.67×3 | 120.67×3 | 120.67×3 | 111.67×6 | 111.67×6 | |
排灰口法蘭螺孔 | A | 240 | 240 | 240 | 300 | 300 |
B | 200 | 200 | 200 | 260 | 260 | |
ф×n | ф11×6 | ф11×6 | ф11×6 | ф13×8 | ф13×8 | |
型號 | FVB-W-3/220 | FVB-W-3/260 | FVB-W-3/300 | FVB-W-3/380 | |
D | 3360 | 3360 | 3360 | 3360 | |
D1 | 3475 | 3475 | 3475 | 3475 | |
H | 8985 | 9385 | 9785 | 10585 | |
H1 | 5930 | 6280 | 6630 | 7380 | |
H2 | 7145 | 7545 | 7945 | 8745 | |
L1 | 1935 | 1935 | 1935 | 1985 | |
L2 | 2400 | 2400 | 2400 | 2400 | |
L3 | 1000 | ||||
進風口A1×B2 | 500×600 | 500×700 | 500×800 | 600×900 | |
出風口A2×B1 | 1000×800 | 1000×800 | 1000×800 | 1000×800 | |
排灰口D | 240 | 240 | 240 | 240 | |
進風口法蘭螺孔 | a1×n1 | 114.4×5 | 114.4×5 | 114.4×5 | 112×6 |
b1×n2 | 112×6 | 128.67×6 | 124.57×7 | 121.5×8 | |
出風口法蘭螺孔 | a2×n3 | 119.11×9 | 119.11×9 | 119.11×9 | 119.11×9 |
d2×n4 | 124.57×7 | 124.57×7 | 124.57×7 | 124.57×7 | |
排灰口法蘭螺孔 | A | 340 | 340 | 340 | 340 |
B | 300 | 300 | 300 | 300 | |
ф×n | ф13×8 | ф13×8 | ф13×8 | ф13×8 | |

冀公網安備13098102000529號